Projeto Elétrico Residencial
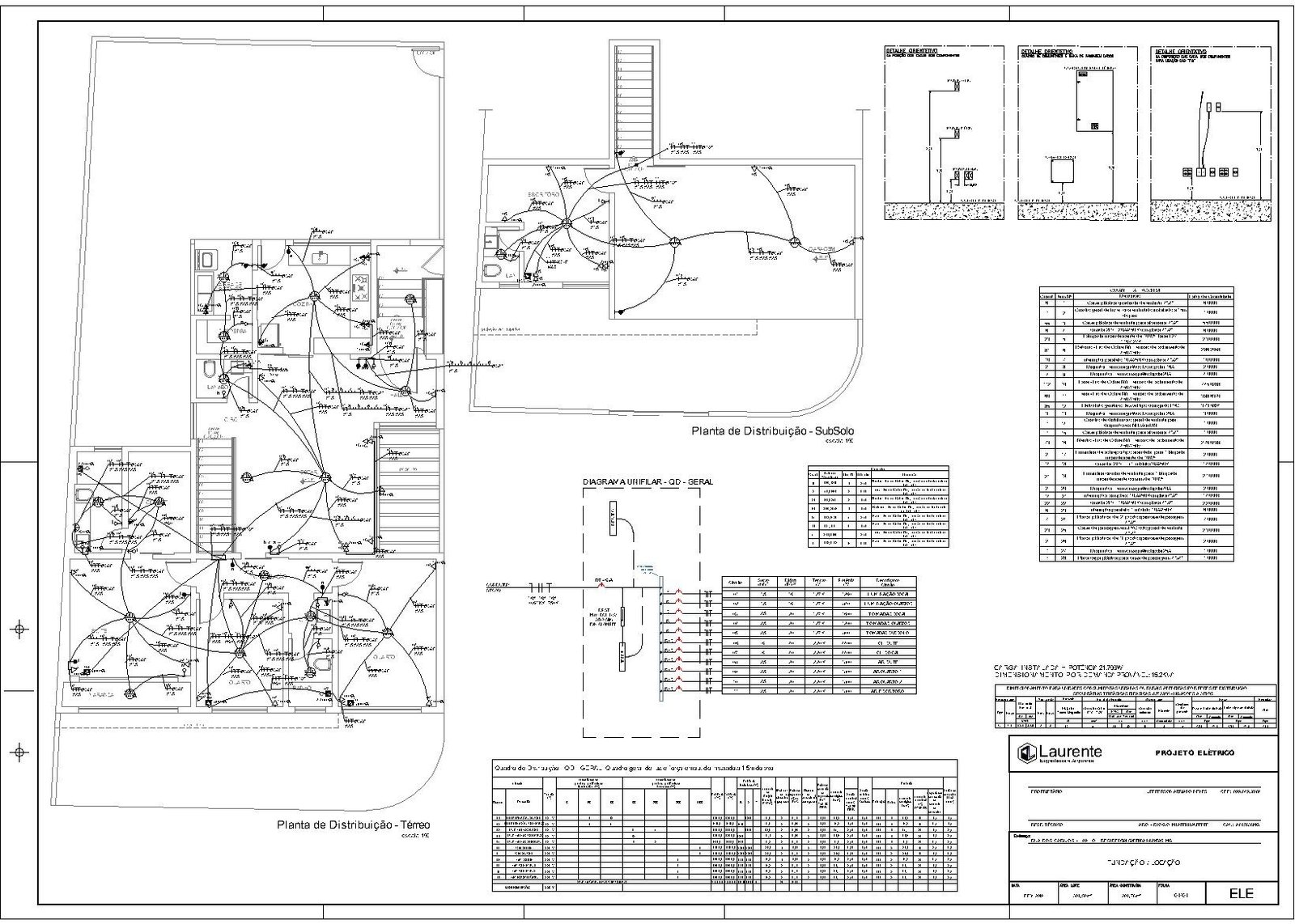
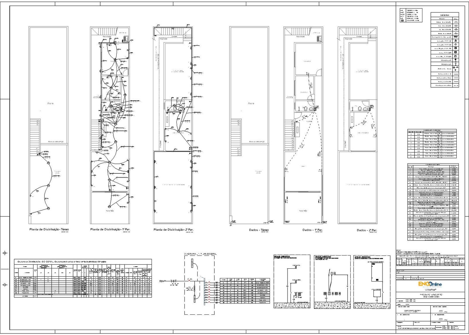
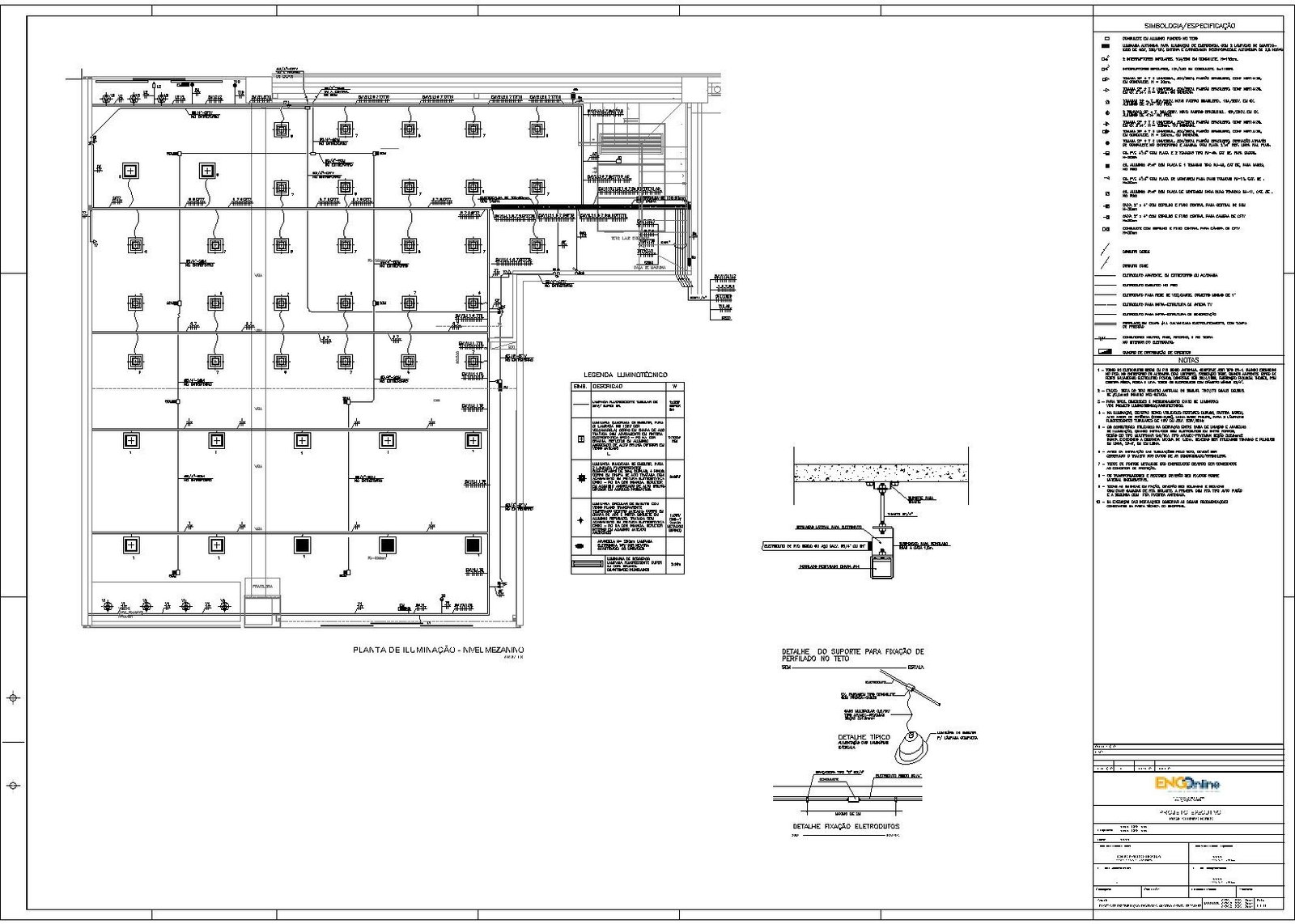
Um projeto elétrico residencial é um plano detalhado que descreve a disposição dos sistemas elétricos dentro de uma residência. Este plano inclui a localização de tomadas, interruptores, luminárias e equipamentos elétricos de grande porte, ou mesmo, de uso especifico, bem como a rota de todos os cabos de alimentação.
Ele é criado seguindo normas técnicas específicas (no Brasil, a principal é a NBR 5410), e com isso, ajudam a garantir a segurança das instalações elétricas. Essas normas cobrem tudo, desde a capacidade dos circuitos até os tipos de equipamentos que podem ser usados.
Com isso, o objetivo de um projeto elétrico residencial é garantir que a casa tenha uma alimentação elétrica segura, e também, eficiente e adequada às necessidades dos seus habitantes. Ele deve levar em consideração não apenas a demanda de energia atual, mas também possíveis futuras expansões ou modificações.
PRINCIPAIS ETAPAS:
As principais etapas para a elaboração de um projeto elétrico residencial incluem:
- Levantamento de carga: Determina-se a quantidade de energia que a residência vai demandar. Isso inclui todos os equipamentos que serão usados na casa, desde pequenos eletrodomésticos até grandes aparelhos como ar-condicionado e chuveiros elétricos.
- Diagramação: Este é o processo de desenhar o layout do projeto. Ele mostra onde todos os dispositivos elétricos estarão localizados e como serão conectados.
- Dimensionamento: Esta etapa envolve a determinação do tamanho apropriado para cabos, disjuntores e outros equipamentos, baseado na demanda de energia calculada no levantamento de carga.
- Detalhamento: Uma vez que o layout e dimensionamento estejam completos, o próximo passo é detalhar o projeto, o que inclui a seleção de materiais, criação de uma lista de compras, e a elaboração de instruções para a instalação.
- Execução e supervisão: Depois que o projeto é finalizado, a instalação pode começar. Dependendo do profissional, o engenheiro elétrico também pode estar envolvido na supervisão da obra para garantir que o projeto seja implementado corretamente.
É importante ressaltar que um projeto elétrico adequado e bem executado proporciona segurança, economia e funcionalidade para a residência. Portanto, é fundamental contar com profissionais qualificados para essa tarefa.
PERGUNTAS FREQUENTES DE PROJETO ELÉTRICO RESIDENCIAL
-
P: O que é um projeto elétrico residencial?
R: É um plano detalhado que descreve a disposição dos sistemas elétricos em uma residência, garantindo segurança e eficiência.
-
P: Por que preciso de um projeto elétrico residencial?
R: Um projeto elétrico residencial garante que a instalação elétrica da sua casa seja segura, atenda às suas necessidades de energia e esteja em conformidade com as normas técnicas.
-
P: Quem deve fazer um projeto elétrico residencial?
R: O projeto elétrico residencial deve ser feito por um engenheiro elétrico ou um profissional qualificado na área de instalações elétricas.
-
P: O que é levantamento de carga em um projeto elétrico?
R: Levantamento de carga é o processo de determinar a quantidade total de energia que a residência irá demandar, considerando todos os equipamentos elétricos que serão utilizados.
-
P: O que é dimensionamento em um projeto elétrico residencial?
R: Dimensionamento é a etapa onde se define o tamanho apropriado para cabos, disjuntores e outros equipamentos com base na demanda de energia da casa.
-
P: O que a NBR 5410 determina?
R: A NBR 5410 é a norma brasileira que estabelece as condições a que devem satisfazer as instalações elétricas de baixa tensão para garantir a segurança de pessoas e animais e a preservação dos bens.
-
P: Quais são os benefícios de um projeto elétrico bem feito?
R: Segurança contra acidentes elétricos, eficiência energética, economia a longo prazo e possibilidade de planejar futuras expansões são alguns dos benefícios.
-
P: O que acontece se eu não seguir o projeto elétrico residencial durante a instalação?
R: Ignorar o projeto elétrico pode levar a instalações inseguras ou ineficientes, que podem causar acidentes, sobrecarga nos sistemas ou aumento nos custos de energia.
-
P: O que são circuitos em um projeto elétrico?
R: Circuitos são trajetórias fechadas por onde a corrente elétrica percorre, podendo ser dedicados (para um único equipamento) ou gerais (para vários pontos de consumo).
-
P: O que acontece após a conclusão do projeto elétrico?
R: Após a conclusão do projeto, começa a fase de execução, onde a instalação elétrica é feita conforme o projeto. Também é importante realizar a manutenção periódica do sistema.
COMO É ENTREGUE
Fontes para normas:
https://www.abnt.org.br/





